NHÀ 2 TẦNG MÁI THÁI ĐẸP SANG HOT NHẤT NĂM 2022
Theo xu hướng thiết kế nhà của nhiều gia chủ hiện nay thì phong cách cá tính khỏe khoắn và đơn giản đang được ưa chuộng và là tiêu chí ưu tiên đặt lên hàng đầu. Phong cách kiến trúc này nhận được nhiều ý kiến hài lòng từ các chủ đầu tư, họ cho rằng: xây dựng một ngôi nhà chỉ cần chắc chắn về hình khối, mảng miếng trang trí cân đối cũng như không gian sử dụng, hình thức công năng linh hoạt và hợp lý là được, chứ cầu kỳ quá vừa rườm rà lại còn tốn kém, trông cũng kém sang… Hôm nay Công ty kiến trúc – xây dựng QUANG TRƯỞNG xin giới thiệu đến các bạn mẫu nhà 2 tầng mái thái đẹp nhất năm

Kiến trúc biệt thự nhà mái thái 2 tầng với kích thước 10 x 14m được thiết kế với những đường nét vô cùng cơ bản nhưng vẫn toát được lên vẻ đẹp của ngôi nhà. Với cách thiết kế các cột trụ của ngôi nhà vuông thành sắc cạnh ở phần tiền sảnh khiến ngôi nhà có cảm giác được nâng đỡ vô cùng chắc chắn, đồng thời những phần mái đua ra nhằm tạo được hình khối phong phú cho ngôi nhà giúp ngôi nhà có hình khối không bị cộc lốc, tủn mủn.
Điểm nổi bật nhất trong kiến trúc của ngôi nhà mái thái 2 tầng hot nhất năm
Hệ thống cửa được thiết kế vô cùng bền chắc
Với kiểu kiến trúc vô cùng vững chắc từ màu sắc sơn của những lam bê tông ngoài sân, trong gara ô tô hay những điểm nhấn của toàn bộ hệ thống, cửa trong ngôi nhà đều được làm bằng chất liệu gỗ rất sang trọng và hiện đại.

Nhiều gia đình không thích sử dụng cửa gỗ vì nhiều lý do như nhanh phai màu, dễ bị co ngót, bị ảnh hưởng bởi thời tiết,…. Ngoại trừ những nhược điểm đó thì cửa gỗ cũng có rất nhiều ưu điểm là bền, đẹp và sang trọng, mùa đông thì ấm áp, mùa hè thì tạo cho ngôi nhà cảm giác mát mẻ. Sử dụng cửa gỗ tạo được sự thân thiện với môi trường, sự ấm cúng và gần gũi khi bước vào ngôi nhà. Gia chủ của mẫu nhà 2 tầng mái thái đẹp này đã tận dụng được tối đa ưu điểm của gỗ để phục vụ cho ngôi nhà của mình.
Tuy nhiên, chi phí cho vật liệu gỗ ngày càng gia tăng do nguồn tài nguyên gỗ ngày càng bị cạn kiệt và đang bị thu hẹp, những vật liệu bằng các loại gỗ quý thì lại vô cùng hiếm và các gia chủ phải bỏ ra một chi phí rất cao cho các vật liệu đó, vì vậy phải là những gia đình có điều kiện kinh tế mới có thể đầu tư cho ngôi nhà của mình các đồ dùng, đồ nội thất bằng gỗ. Các gia chủ cũng có thể lựa chọn các vật liệu gỗ công nghiệp hoặc giả gỗ để hạn chế chi phí cũng như những nhược điểm của gỗ tự nhiên mà vẫn đảm bảo thẩm mỹ cho ngôi nhà của mình.

Một sự kín đáo được tạo ra qua những lát cắt, cách đóng – mở liên tục được sử dụng linh hoạt cho ngôi nhà. Tuy nhiên cuối cùng, khi bước vào bên trong mỗi phòng ngủ, người ở như lại mở ra những góc sống chan hòa với thiên nhiên khi đều có khoảng vườn riêng ở ban công . Tất cả tạo thành một chuỗi những trải nghiệm thú vị khi phám phá không gian sống từ ngoài vào đến tận những nơi riêng tư nhất bên trong ngôi nhà.
Mặt bằng công năng các tầng bố trí khoa học và hợp lý
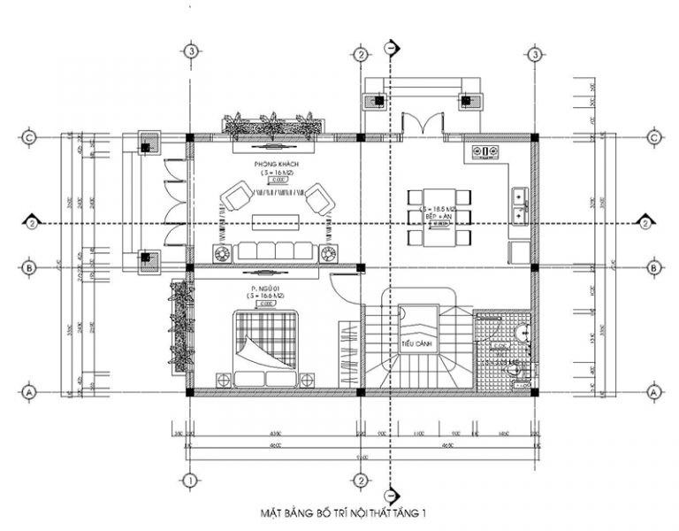
Mặt bằng tầng 1 mẫu nhà 2 tầng mái thái đẹp
Mặt bằng tầng 1 gồm các chức năng chính: sảnh chính, phòng khách, sảnh phụ, bếp + ăn, phòng ngủ 1, wc chung. Bước vào sảnh chính là phòng khách, phía bên trái phòng khách là sảnh phụ, tiếp theo là bếp + ăn, bên phải là thang lên tầng, bên cạnh thang là wc chung. Ngay bên cạnh phòng khách sẽ là 1 phòng ngủ.

Ngôi nhà được thiết kế với kiểu kiến trúc hiện đại, nên cách bố trí nội thất cũng đều thiên về sự đơn giản tạo được không gian đúng với ý của gia chủ. Thiết kế nhà mái thái 2 tầng đẹp rộng 130m2 ở Nam Định với 1 phòng ngủ ở tầng 1 bên cạnh khu vực tiếp khách cũng như khu vực cho cầu thang để di chuyển lên tầng trên. 
Các không gian như phòng khách, được gia chủ chăm chút và sắm sửa một bộ bàn ghế sofa kích thước khá lớn lấp đi khoảng trống rộng của phòng khách một cách hợp lí và đẹp mắt, chúng được thiết kế theo kiểu kiến trúc đương đại vô cùng tiện ích, với chiếc ghế sofa dài gia chủ có thể nằm hoặc duỗi chân ngồi nghỉ ngơi thư giãn vô cùng thuận tiện. Nhìn chung, không gian phòng khách vừa là không gian lịch sự vừa lịch thiệp nhã nhặn, sang trọng nhưng đồng thời nó cũng là không gian tụ họp gia đình vào những lúc rảnh rỗi. Kiến trúc ngôi nhà 2 tầng mái thái đẹp giúp cho tất cả các thành viên đến gần nhau hơn, gắn kết tình cảm bền chặt hơn.

Ở ngay tầng 1 được thiết kế 1 phòng ngủ, nội thất với đầy đủ tiện nghi. Với giường ngủ kích thước lớn hướng ra kệ tivi đặt ở giữa trung tâm phòng ngủ tạo được sự thuận tiện cho người theo dõi, đồng thời nó cũng là cách bố trí không gian phòng ngủ hiện đại và hợp với phong thủy của ngôi nhà nhất. Ngày xưa, theo quan niệm của cha ông ta thì phải kê giường vào góc hay đặt cạnh cửa sổ, và tivi thiết kế đặt ở một góc phòng…. trong mẫu thiết kế mẫu nhà mái thái 2 tầng đẹp này cách bố trí giường ngủ của ngày nay đã khác hẳn so với cách bố trí ngày xưa đó là cách khắc phục những nhược điểm mà kê giường ở góc tạo cho ta cảm giác bí bách, không khí bị bí bức, khó lưu thông và gây khó dễ khi gia chủ lau dọn, vệ sinh cho căn phòng. 
Ngôi nhà được thiết kế với tiêu chí phòng ngủ phải lấy được đủ ánh sáng có ô thoáng và cách bố trí đồ đạc logic tránh sự bất tiện. Tủ quần áo được kê vào chỗ tường ít di chuyển hay xê dịch, để giúp cho gia chủ tạo cảm giác thoải mái khi sử dụng. Hơn nữa, phòng vệ sinh riêng cũng được thiết kế bằng gạch lát sàn chuyên dùng cho nhà vệ sinh vô cùng sạch sẽ, có độ nhám và tránh được sự trơn trượt.

Mặt bằng tầng 2 mẫu nhà 2 tầng mái thái đẹp
Tầng 2 gồm có : 3 phòng ngủ, wc chung, 2 ban công.


Có thể nói, càng lên cao không khí càng thoáng mát bởi lẽ tầm nhìn của mẫu nhà 2 tầng mái thái đẹp này không bị che khuất hay vướng víu. Ở các không gian trên tầng 2 đều có các mặt tiếp giáp với thiên nhiên và có thể nói bản vẽ kiến trúc nhà mái thái 2 tầng 130m2 được thiết kế rất khéo léo, tạo cảm giác rất mát mẻ cho người sử dụng khi đứng ở ban công, không gian các phòng ngủ đều có thể hút gió làm lưu thông không khí. Mẫu nhà 2 tầng mái thái đẹp được thiết kế với không gian mở cũng như tận dụng được các hướng nắng, gió một cách tối ưu.



Việc xây dựng 1 ngôi nhà 2 tầng mái thái đẹp với phong cách hiện đại đối với nhiều chủ đầu tư đang là một nỗi lo lớn về chi phí thiết kế cũng như giá cả vật tư xây dựng. Nhưng những nỗi lo của quý vị sẽ hoàn toàn được giải quyết khi đến với chúng tôi, đến với QUANG TRƯỞNG mọi chủ đầu tư có thể yên tâm rằng việc xây dựng nên 1 ngôi nhà như mong muốn là hoàn toàn khả thi và có thể thực hiện được 1 cách dễ dàng nhất với đầy đủ tiện nghi và công năng thẩm mỹ.

Có thể bạn quan tâm
𝑵𝒉𝒂̣̂𝒕 𝑲𝒊́ 𝑵𝒉𝒖̛̃𝒏𝒈 𝑴𝒂̂̃𝒖 𝑵𝒉𝒂̀ 𝑮𝒂́𝒄 𝑳𝒖̛̉𝒏𝒈 𝑸𝒖𝒂𝒏𝒈 𝑻𝒓𝒖̛𝒐̛̉𝒏𝒈 Đ𝒂̃ 𝑻𝒉𝒊 𝑪𝒐̂𝒏𝒈 𝑯𝒐𝒂̀𝒏 𝑻𝒉𝒊𝒆̣̂𝒏
Top 8 Kinh Nghiệm Sửa Chữa, Cải Tạo Nhà Cũ Thành Nhà Mới
NHÀ THẦU XÂY DỰNG UY TÍN TẠI VŨNG TÀU
Tại Sao Cửa Nhôm Singfa Lại Là Một Lựa Chọn Tốt Nhất Cho Ngôi Nhà Của Bạn
Những mẹo hay khi chọn vật liệu xây dựng cho ngôi nhà của bạn
Sơn Giả Đá – Ứng Dụng Sơn Giả Đá